
Lahore, Pakistan
Humanity Hospital & Medical Center
Specialized cardiac healthcare should not be a world away.
Donate
Our groundbreaking signature project.
With an experienced, capable team on the ground, and together with land already purchased, we are ready to build this hospital in the center of Lahore, Pakistan. We need your help.

Bridge The Gap in Health Care
Deliver quality healthcare with compassion and dignity:
Quality treatment focused on heart related diseases
State of the art facility with 100 beds
Latest technology and fully trained staff
5 story building with diagnostic center and teaching facility
Make a Lasting Impact Through Social Change
About
This medical center will offer top-notch, compassionate care with dignity, serving those in need. Our fully trained staff will deliver comprehensive treatment, ensuring the highest quality healthcare in an innovative and equitable manner.
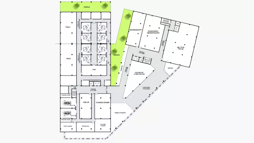
100 Bed Facility
In patient private rooms with four bedded clusters along with wards including labor and delivery, neonatal and pediatric, ICU and CCU, stroke unit, intermediate care, urgent care and emergency department.
Five Story Building
Lower Levels: parking, mosque, security office, laundry services, cafeteria and an outpatient clinic.
Second Floor: Gastro-Intestinal Endoscopy and Renal Hemodialysis Third Floor: operation room, cardiac/catheterization lab, ICU/CCU, and stroke unit.
Outdoor Facilities: Diagnostics center, Radiology department, family clinic, pharmacy and health education facility.
Top Floor: teaching facility with a 120-seat capacity lecture hall.
Patient Centered Comprehensive Treatment
Provide affordable, quality healthcare to those with heart-related diseases. Help us break ground to establish a 100-bed medical center of excellence in the heart of Lahore, Pakistan.


Basement


Ground Floor


First Floor


Second Floor


Third Floor


Fourth Floor


Fifth Floor





